Projecten

Westzaan
Amstelveen
Vijfhuizen

Renovatie woning

Westzaan

Het nader uitwerken van de stukken voor een vergunningaanvraag voor het verbouwen / uitbreiden van een bestaande woning. Op de impressies is het uiteindelijke resultaat te zien.

Realisatie woning

Amstelveen

Het maken van het ontwerp + uitwerken van de vergunningaanvraag voor het realiseren van een vrijstaande woning.

Bedrijfsunits

Vijfhuizen

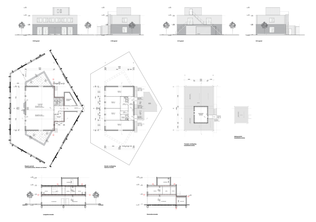
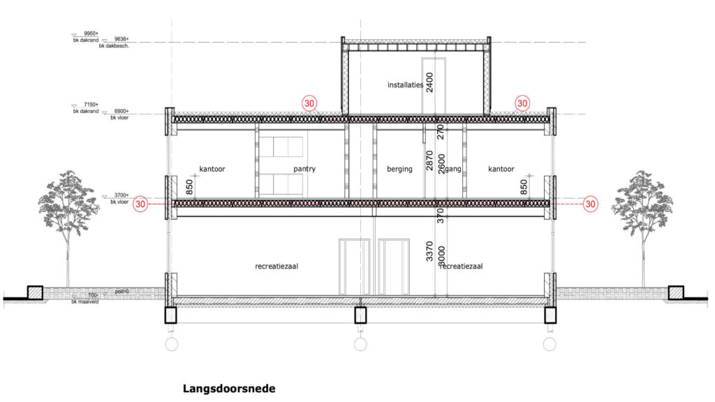
Het maken van het ontwerp en het uitwerken van de vergunningaanvraag voor het realiseren van meerdere bedrijfsunits. De begane grond van de bedrijfsunits zijn geschikt voor opslag/een werkplaats en op de bovenliggende verdiepingen is kantoorruimte beschikbaar.

Werkzaamheden

  • Vergunningaanvraag

Werkzaamheden

  • Ontwerp

  • Vergunningaanvraag

Werkzaamheden

  • Ontwerp

  • Vergunningaanvraag
Ruigrok Corner
Lisse
Hillegom

haalbaarheidsstudie

Aalsmeer

Voor deze locatie hebben we een haalbaarheidsonderzoek uitgevoerd en een schetsontwerp gemaakt voor het realiseren van een kleinschalig appartementencomplex. We zullen dit project verder gaan uitwerken ten behoeve van de vergunningaanvraag en uiteindelijk de bouwbegeleiding verzorgen voor de realisatie van het project.

Nieuwbouw

Lisse

Het onderzoeken van de mogelijkheden, het maken van het ontwerp + uitwerken van de vergunningaanvraag voor het realiseren van een nieuw bouwwerk ter plaatse van een voormalig zwembad behorende bij het hotel. In het bouwwerk zijn o.a. gemeenschappelijke ruimtes en kantoorruimtes voorzien

Logiesgebouw

Hillegom

Voor deze locatie hebben we het ontwerp gemaakt, de vergunningaanvraag uitgewerkt en het bouwmanagement uitgevoerd. We zijn bij dit project vanaf de initiatieffase tot en met de oplevering betrokken geweest.

Werkzaamheden

  • Haalbaarheidsstudie

  • Ontwerp apartementencomplex

Werkzaamheden

  • Vergunningaanvraag

  • Realisatie nieuwbouw bij Hotel

Werkzaamheden

  • Realisatie nieuw logiesgebouw

  • Vergunningsaanvraag

  • Bouwmanagement
Ruigrok Corner
Lisse
Hillegom

haalbaarheidsstudie

Aalsmeer

Voor deze locatie hebben we een haalbaarheidsonderzoek uitgevoerd en een schetsontwerp gemaakt voor het realiseren van een kleinschalig appartementencomplex. We zullen dit project verder gaan uitwerken ten behoeve van de vergunningaanvraag en uiteindelijk de bouwbegeleiding verzorgen voor de realisatie van het project.

Ruigrok Tower

Aalsmeer

Voor deze locatie hebben we vanaf de initiatieffase tot en met de oplevering het bouwmanagement uitgevoerd ten behoeve van de realisatie van het logiesgebouw. Na de oplevering assisteren wij de opdrachtgever bij het beheer van de locatie.

Logiesgebouw

Hillegom

Voor deze locatie hebben we het ontwerp gemaakt, de vergunningaanvraag uitgewerkt en het bouwmanagement uitgevoerd. We zijn bij dit project vanaf de initiatieffase tot en met de oplevering betrokken geweest.

Werkzaamheden

  • Bouwmanagement

  • Ondersteuning

  • Beheerassistentie

Werkzaamheden

  • Haalbaarheidsstudie

  • Ontwerp apartementencomplex

Werkzaamheden

  • Realisatie nieuw logiesgebouw

  • Vergunningsaanvraag

  • Bouwmanagement

Maar ook voor...

Bouwkundig advies & Beheer ben je bij TPS B.V. aan het juiste adres. We nemen alle pijn van je weg door te ondersteuning bij het begeleiden van alle soorten bouwprojecten van groot tot klein, van ontwerp tot proces.

Heb je een object wat in beheer genomen moet worden? Geen probleem, ook daar kunnen we bij helpen!

Overtuigd?

Neem dan meteen contact op!

Hartelijk bedankt voor de aanvraag! We nemen op het aangegeven moment contact met u op! Heeft u geen moment opgegeven dan bellen we u zo snel mogelijk!